OFFICE

RIV heeft alles in zich. Het is een kantoorgebouw dat bruist van energie, waar ambities worden waargemaakt. Een landmark op een schitterende locatie, in het centrum van de stad, tussen de Willemsbrug en de Erasmusbrug. Met een uitzicht dat grenst aan perfectie, over de indrukwekkende rivier de Maas en de skyline richting Rotterdam Centraal. De grondige renovatie en de flexibele indeling van de ruimtes, maken van RIV met recht een droomlocatie.

create your

create your Dream office

beschikbare vloeren
plattegronden
9 8 7 6 5 4 3 2 9 8 7 6 5 4 3 2

BESCHIKBARE VLOEREN

Een gebouw met een eigen gezicht, een eigen karakter. Dynamisch en energiek. De voorzieningen en services zijn in een woord perfect, aan alles is gedacht. De indeling is flexibel. U kunt zelf een ruimte creëren die naadloos aansluit op uw ambities. Deelverhuur is mogelijk vanaf circa 440 m²

9 8 7 6 5 4 3 2 9 8 7 6 5 4 3 2
9 8 7 6 5 4 3 2 9 8 7 6 5 4 3 2
  • 9e verdieping ca. 900 m² kantoorruimte
  • 8e verdieping ca. 885 m² kantoorruimte
  • 7e verdieping ca. 875 m² kantoorruimte
  • 6e verdieping ca. 875 m² kantoorruimte
  • 5e verdieping ca. 875 m² kantoorruimte
  • 4e verdieping ca. 875 m² kantoorruimte
  • 3e verdieping ca. 863 m² kantoorruimte
  • 2e verdieping ca. 744 m² kantoorruimte

SPECIFICATIES

  • de vloeren worden casco gerenoveerd opgeleverd;
  • er zijn 4 personenliften en 1 expeditielift aanwezig;
  • het gebouw is aangesloten op Stadsverwarming er zijn 2 koelmachines en 2; luchtbehandelingskasten aanwezig (t.b.v. luchtbehandeling en topkoeling);
  • per verdieping is de installatie in te stellen op basis van de definitieve inrichting van het gehuurde, waarbij de temperatuur van individuele ruimtes met 3 graden bijgesteld kan worden;
  • op de begane grond is een receptie & moderne lounge met koffiebar aanwezig;
  • op de eerste etage kan men gebruik maken van het uitgebreide bedrijfsrestaurant.

PLATTEGRONDEN

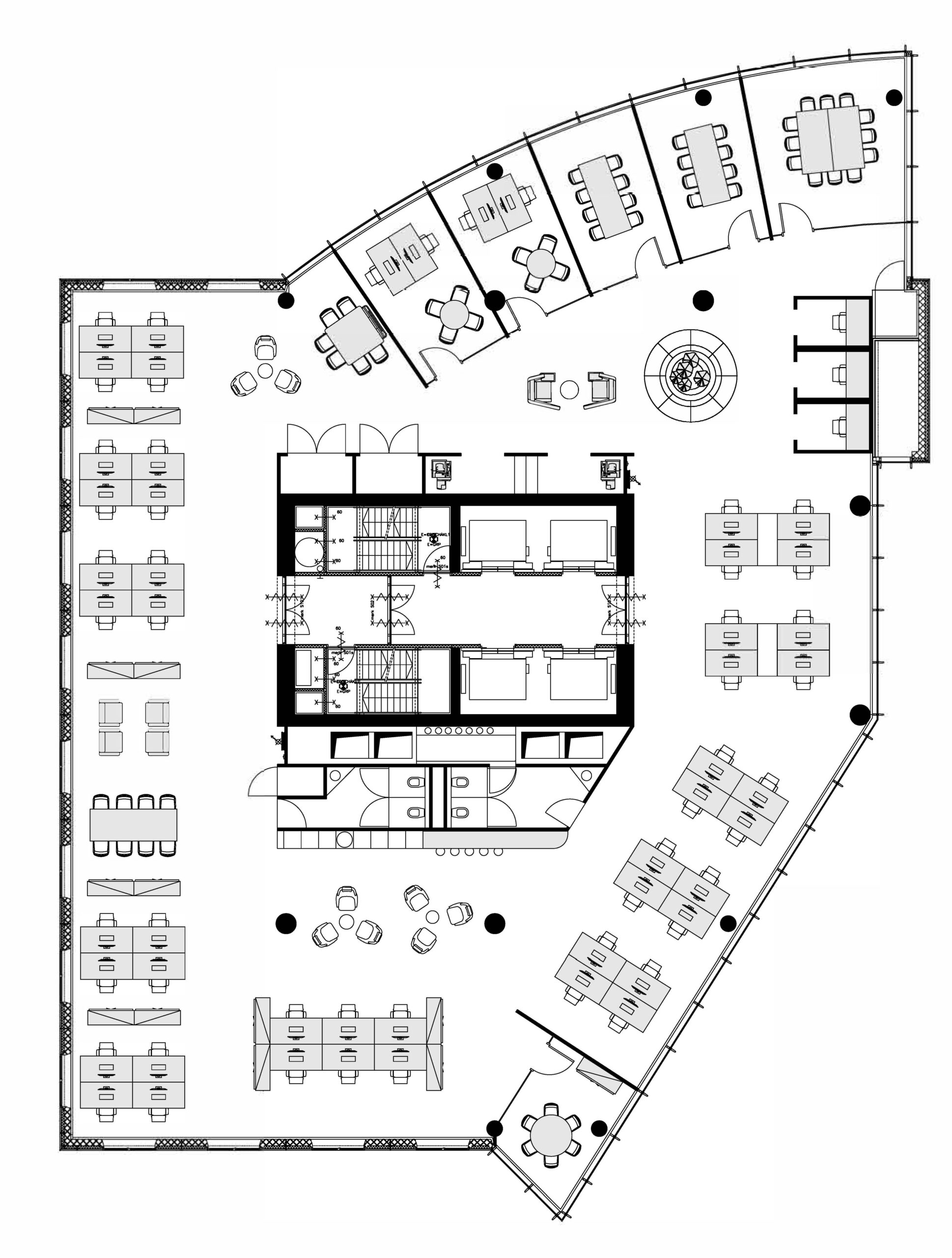
INDELINGSVOORSTEL 1
7e verdieping

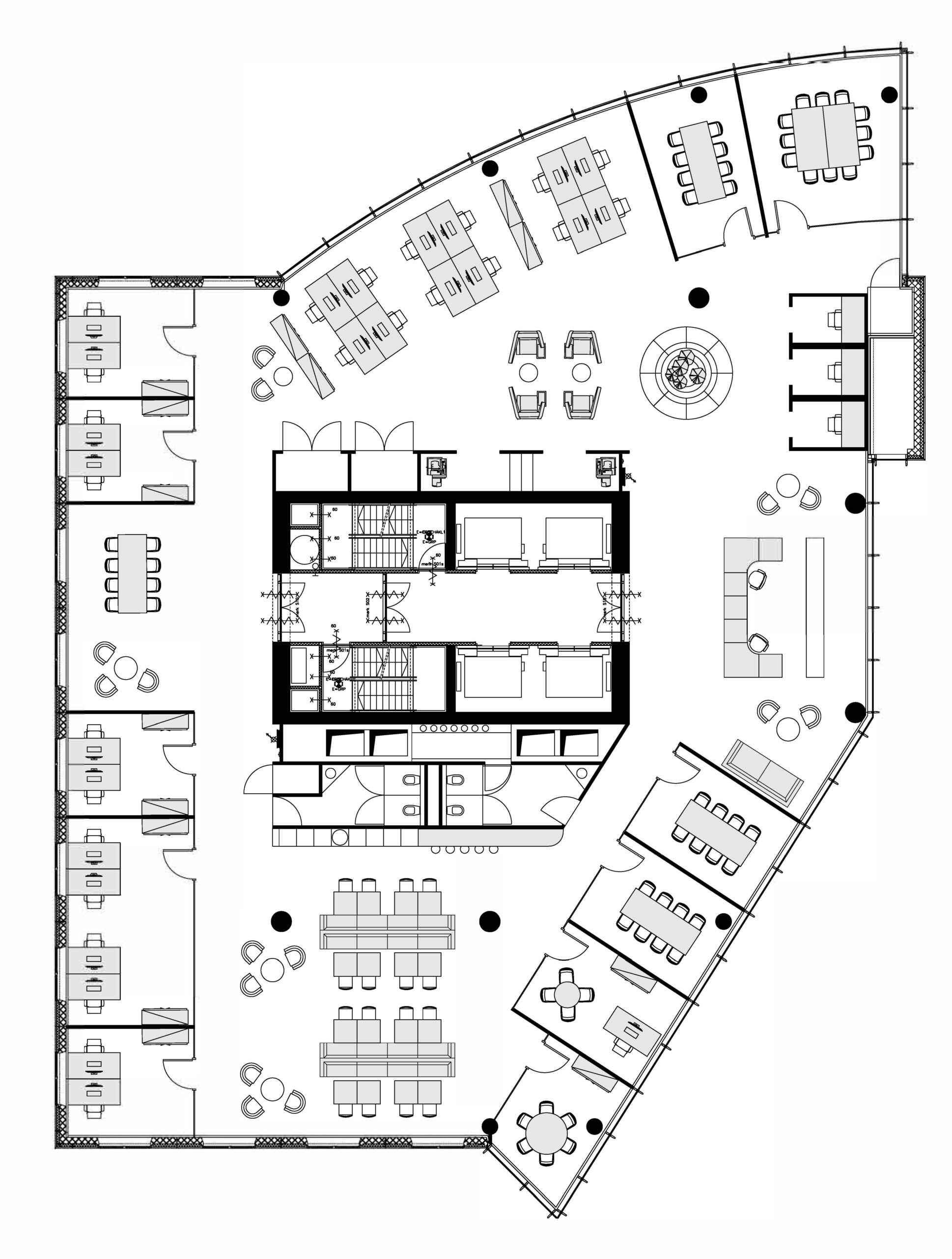
INDELINGSVOORSTEL 2
7e verdieping

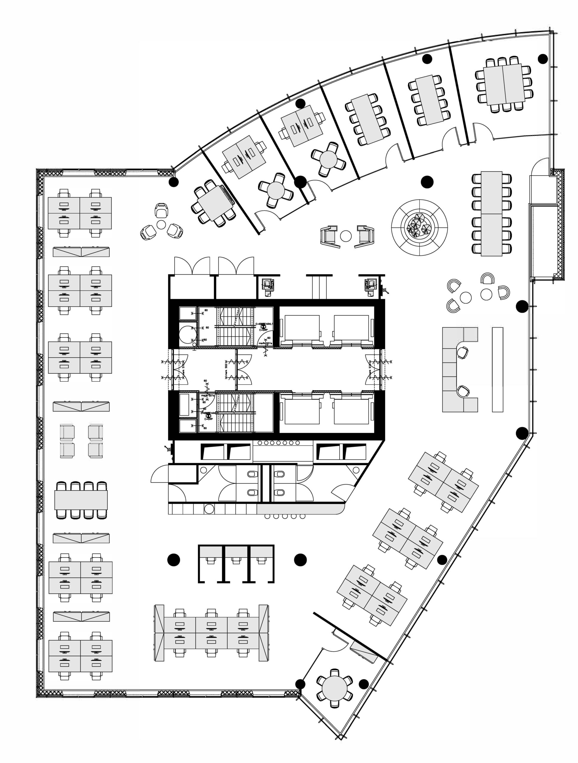
INDELINGSVOORSTEL 3
7e verdieping

INDELINGSVOORSTEL 4
7e verdieping

Spaces

De royale kantoren bieden ruimte om te groeien, te ondernemen en te creëren. De immense raampartijen zorgen voor een schitterende lichtinval. Het uitzicht op de Nieuwe Maas en de Rotterdamse Skyline van de binnenstad doet de rest.

Inspiring

Soms is er behoefte om geconcentreerd te werken, dan weer staat de interactie tussen medewerkers centraal. De indeling van de ruimte is van essentieel belang. Wij bieden verschillende indelingsvarianten en staan voor u klaar om samen met u op zoek te gaan naar de indeling die het beste bij u past, naar de perfecte combinatie tussen open en gesloten kantoorindeling per etage.